
SOBRE MIM
Engenheiro Civil com mais de 6 anos de experiência. Transformo projetos em realidade com precisão técnica e visão estratégica. Possuo o diferencial de ampla experiência e expertise em modelagem 3D, tecnologia BIM, através do software Revit, e orçamentos detalhados para obras públicas e privadas. Entrego projetos que passam por aprovação, saem do papel e se tornam obras bem executadas. Fiscalizo obras e crio soluções com impacto direto no cronograma e orçamento. Atuo com total domínio de AutoCAD, Revit, Lumion, TQS, CypeCad, SketchUp, MS Project e Excel avançado
PROJETOS EM DESTAQUE
Casa alvorada
Esse projeto de casa duplex foi desenvolvido na cidade de Campos dos Goytacazes - RJ, essa residência possui dois quartos no pavimento superior, sendo um suíte com sacada voltada para parte frontal. No pavimento térreo, encontra-se a sala de estar, sala de jantar e cozinha, que são integradas.
Projeto arquitetônico de residência, localizada em um condomínio fechado. Esse projeto foi desenvolvido com exclusividade para o cliente. A residência conta com três dormitórios, sendo duas suíte. A casa também possui cozinha integrada a sala de jantar e uma espaçosa área gourmet integrada a área de lazer.
CASA riviera
CASA
Dom bosco
Essa residência de condomínio uni modernidade e beleza. Na parte superior há três dormitórios, sendo duas suítes. Esta casa possui ainda um quarto no pavimento térrreo, sala de estar, sala de jantar e cozinha integrados, além de uma espaçosa área gourmet na área de lazer nos fundos da residência
Com uma combinação perfeita entre design e funcionalidade, essa residência possui três dormitórios, sendo duas suítes no pavimento superior e um quarto no térreo. Caso não necessite de todos os dormitórios, o quarto do térreo pode ser facilmente utilizado como escritório. A residência ainda conta com sala de estar, sala de jantar e cozinha integradas.
CASA Tamandaré
Veja o que estará incluso nos projetos de arquitetura
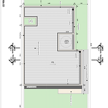
PLANTA BAIXA
CORTES
ELEVAÇÕES
planta de cobertura

CORTES
ELEVAÇÕES
A Planta Baixa é a planta executiva pronta para construir. Mostra a posição das paredes, dimensões e áreas dos ambientes da casa. A localização das portas, janelas e níveis dos pisos e escadas, entre outros.
planta de cobertura

CORTES
ELEVAÇÕES
Os cortes longitudinais e transversais mostram as alturas dos pisos, altura (pé direito), peitoris de janelas, nível e espessura de lajes, degraus de escada. as medidas e materiais dos revestimentos de paredes, pisos, tetos, entre outros.
planta de cobertura

CORTES
ELEVAÇÕES
Esta planta mostra o desenho da elevação frontal, elevação posterior, elevação das laterais da casa, caracterizando janelas, portas de entrada, as especificações de acabamento e detalhes.
planta de cobertura

CORTES
ELEVAÇÕES
Representação gráfica dos detalhes do telhado da casa com as indicações e caimentos das águas para os respectivos coletores da água da chuva, bem como o indicativo de posicionamento dos percentuais de inclinação das telhas.
planta de cobertura
Planta de situação
Imagens 3D
Detalhamento
quadro de área e esquadrias

Planta que mostra a locação da casa e as medidas mínimas de afastamentos frontais e laterais em relação às divisas do terreno.

maquete eletrônica que contém as imagens e vídeos ilustrativos, em terceira dimensão, mostrando o visual externo da fachada principal e imagens da área interna da casa.

Detalhamento com todas as medidas, distanciamento, materiais dos revestimentos de pisos e paredes da cozinha, banheiro, cobertura e escada.

Quadro de áreas com informações das áreas dos cômodos, coeficiente de aproveitamento, taxa de ocupação, coeficiente de permeabilidade, além de quadro com as dimensões e materiais das janelas e portas.
.png)




.png)





